Меню
Контакт-центр8 (937) 237-59-79

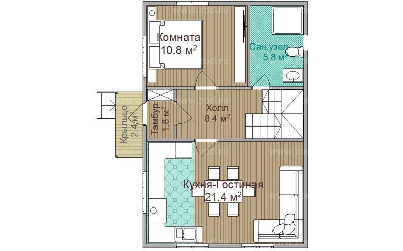
Фортуна 3

Фортуна 3 6.0 x 9.0 90,42 м²
Характеристики
  • Общая площадь: 90,42 м2
  • Площадь застройки: 55,51 м2
  • Размеры: 6.0 x 9.0 м
  • Срок строительства: 20-25 дней
  • 1
    Санузел
  • 4
    Спальни

Выберите технологию

Выберите комплектацию

2929800 руб.
3429801 руб.
4142170 руб.
Цена
2 929 800 руб.
Цены в вашем регионе могут отличаться от представленных на сайте

Описание:

Характеристики
  • Общая площадь: 90,42 м2
  • Площадь застройки: 55,51 м2
  • Размеры: 6.0 x 9.0 м
  • Срок строительства: 20-25 дней
Теплый дом

Добавить инженерный пакет

Теплый дом +
Посмотреть полное описание

Добавить инженерный пакет

Аляска

Добавить инженерный пакет

Фундамент Опорные столбы из бетонных блоков на песчаном основании Фундамент в подарок Свайный винтовой ниже глубины промерзания Фундамент в подарок Свайный винтовой ниже глубины промерзания
Усиленная конструкция пола 1-го этажа, настил пола - доска 21 мм Усиленная конструкция пола 1-го этажа, настил пола - доска 35 мм Усиленная конструкция пола 1-го этажа, настил пола - доска 35 мм
Настил пола 2-го этажа - доска 21 мм Настил пола 2-го этажа - доска 21 мм Настил пола 2-го этажа - доска 35 мм
Усиленная конструкция стен и перекрытий Усиленная конструкция перекрытий Усиленная конструкция стен и перекрытий
Утепление Стены 1-го этажа - 150 мм. Стены 2-го этажа - 100 мм; Пол 1-го этажа - 150 мм; Перекрытие 1-го этажа -50 мм Утепление Стены 1-го и 2-го этажей - 150 мм; Пол 1-го этажа - 150 мм; Перекрытие 1-го этажа - 50 мм Утепление Стены 1-го и 2-го этажей - 200 мм; Многослойная вентилируемая конструкция стен; Пол 1-го этажа - 150 мм; Перекрытие 1-го этажа - 100 мм; Утепление и звукоизоляция перегородок - 100 мм
Отделка дома снаружи вагонкой Отделка дома снаружи вагонкой Отделка дома снаружи сайдингом
Отделка стен и потолка вагонкой Отделка стен и потолка вагонкой Отделка стен и потолка вагонка
Двери деревянные Двери деревянные Двери деревянные, входная дверь металлическая
Окна пластиковые однокамерные Окна пластиковые однокамерные Окна пластиковые двухкамерные
Лестница деревянная Лестница деревянная Лестница деревянная
Кровля Профлист оцинкованный Кровля Профлист оцинкованный Кровля Металлочерепица
Обработка нижней конструктивной части дома огнебиозащитой Обработка конструкции пола огнебиозащитой Обработка нижней конструктивной части дома огнебиозащитой
2 929 800 руб.
3 429 801 руб.
4 142 170 руб.
При строительстве дома в комплектациях "Теплый дом+", "Аляска", "4 сезона", "4 сезона+" и "Зимняя" вы получаете фундамент в подарок!
Более подробную информацию уточняйте у менеджеров по телефону +7 495 445-90-85 или на наших выставочных площадках.
Характеристики
  • Общая площадь: 90,42 м2
  • Площадь застройки: 55,51 м2
  • Размеры: 6.0 x 9.0 м
  • Срок строительства: 20-25 дней
  • 1
    Санузел
  • 4
    Спальни

Выберите технологию

Выберите комплектацию

Цена
2 929 800 руб.
Цены в вашем регионе могут отличаться от представленных на сайте
Обратный звонок
* заполните обязательно